Save
Ask
Tour
Hide
$17
15 Days On Site
320 Riverside Dr 3Northampton, MA 01062
For Sale|Commercial Sale|Active
0
Beds
2
Total Baths
1900
Built
County:
Hampshire
Call Now: 413-527-8311
Is this the listing for you? We can help make it yours.
413-527-8311



Save
Ask
Tour
Hide
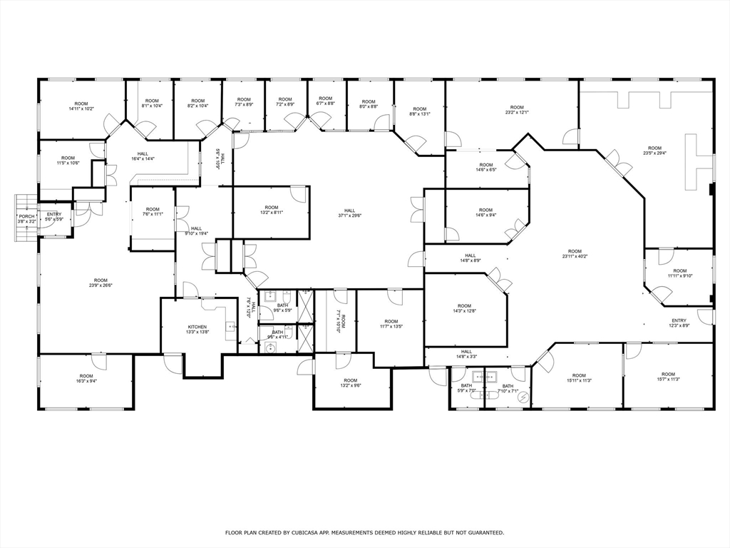
Approximately 6,600 SF of office space available in the Cutlery Building in Florence, a multi-tenant former mill building which has been converted into office space. The space is dividable with a minimum square footage of 2,500 SF. The unit consists of 15 individual offices, 3 large conference rooms, 4 restrooms, and 3 large open rooms, and a large kitchen. High-ceilings, exposed brick, and great natural lighting. Ample parking. Tenant pays utilities. Book your showing today!
Save
Ask
Tour
Hide
Listing Snapshot
Price
$17
Days On Site
15 Days
Bedrooms
N/A
Inside Area (SqFt)
N/A
Total Baths
2
Full Baths
N/A
Partial Baths
N/A
Lot Size
N/A
Year Built
1900
MLS® Number
73501253
Status
Active
Property Tax
$7,829
HOA/Condo/Coop Fees
N/A
Sq Ft Source
N/A
Friends & Family
Recent Activity
| 2 weeks ago | Listing updated with changes from the MLS® | |
| 2 weeks ago | Listing first seen on site |
General Features
Sewer
Public Sewer
Water Source
Public
Zoning
SR
Save
Ask
Tour
Hide
Exterior Features
Roof
Rubber
Listing courtesy of Robert Goggins of 5 College REALTORS® Northampton
The property listing data and information, or the Images, set forth herein were provided to MLS Property Information Network, Inc. from third party sources, including sellers, lessors, landlords, and public records, and were compiled by MLS Property Information Network, Inc. The property listing data and information, and the Images, are for the personal, non-commercial use of consumers having a good faith interest in purchasing, leasing or renting listed properties of the type displayed to them and may not be used for any purpose other than to identify prospective properties which such consumers may have a good faith interest in purchasing, leasing or renting. MLS Property Information Network, Inc. and its subscribers disclaim any and all representations and warranties as to the accuracy of the property listing data and information, or as to the accuracy of any of the Images, set forth herein.
Last checked 2026-04-30 12:53 PM UTC
The property listing data and information, or the Images, set forth herein were provided to MLS Property Information Network, Inc. from third party sources, including sellers, lessors, landlords, and public records, and were compiled by MLS Property Information Network, Inc. The property listing data and information, and the Images, are for the personal, non-commercial use of consumers having a good faith interest in purchasing, leasing or renting listed properties of the type displayed to them and may not be used for any purpose other than to identify prospective properties which such consumers may have a good faith interest in purchasing, leasing or renting. MLS Property Information Network, Inc. and its subscribers disclaim any and all representations and warranties as to the accuracy of the property listing data and information, or as to the accuracy of any of the Images, set forth herein.
Last checked 2026-04-30 12:53 PM UTC
Neighborhood & Commute
Source: Walkscore
Save
Ask
Tour
Hide